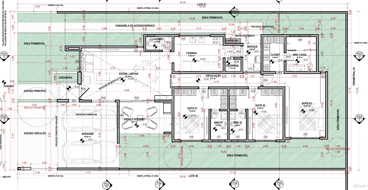
Projeto de residência moderna com ambientes bem distribuídos, pensado para oferecer conforto e funcionalidade:
3 dormitórios, sendo 3 suítes, proporcionando privacidade e comodidade para os moradores;
4 banheiros no total, com layout prático e eficiente;
Sala de estar integrada, ideal para momentos de convivência e lazer;
Copa e cozinha com design funcional, facilitando o dia a dia;
Área de serviço reservada, garantindo organização e praticidade.
Projeto de residência moderna com ambientes bem distribuídos, pensado para oferecer conforto e funcionalidade:
3 dormitórios, sendo 3 suítes, proporcionando privacidade e comodidade para os moradores;
4 banheiros no total, com layout prático e eficiente;
Sala de estar integrada, ideal para momentos de convivência e lazer;
Copa e cozinha com design funcional, facilitando o dia a dia;
Área de serviço reservada, garantindo organização e praticidade.
– Planta Baixa Humanizada
– Planta de Locação
– Planta de Cobertura
– Fachada
– Cortes Internos
– Planta Fachada 3D
– Planta de Pontos Hidráulicos
– Planta de Localização
Toda prefeitura exige um profissional que tenha registro local para se responsabilizar pela aprovação e execução da obra. Com posse do nosso material, esse engenheiro ou arquiteto poderá alterar o projeto conforme as exigências da prefeitura ou condomínio, já que também enviamos os arquivos em dwg (CAD).
O projeto mais importante e primordial é o Projeto Arquitetônico. Com ele você executa toda a obra e faz a aprovação na prefeitura. Depois existem também outros projetos que disponibilizamos de forma opcional, como os Projetos Elétrico e Hidráulico, que garantem uma enorme economia graças a sua lista de materiais, muito útil na hora das compras, evitando desperdícios e facilitando os orçamentos.

Navegue pelo site, veja as opções de plantas e escolha o projeto que combina com o seu terreno. Verifique a metragem e os detalhes.

Finalize a compra e faça o pagamento de forma rápida e segura.

Após a compra, você recebe o projeto completo em .zip para download diretamente no seu e-mail ou painel usuário no site.

Se desejar receber o projeto impresso na sua casa, fale com a nossa equipe pelo WhatsApp e solicite a versão física.